Aan de Zeeuwse Kust, op de kop van het eiland Schouwen-Duiveland, vindt u deze prachtig onderhouden en duurzame 6-persoons vakantievilla! De vrijstaande duinvilla ligt op Vakantiepark Schouwenduin en is nu te koop. Er ligt een royale tuin omheen en biedt een vrij uitzicht. Daarnaast heeft het park een natuurlijke uitstraling, ingericht met schelpenpaden, struiken en ander jong gewas. Ten slotte vindt u het Noordzeestrand op loopafstand en het park ligt aan de voet van de duinen van Haamstede.
Specificaties & informatie over de duinvilla:
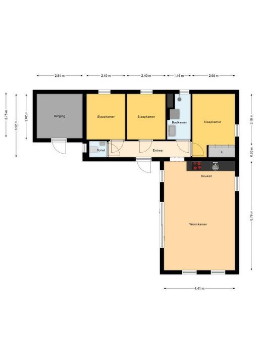
- 75m2 L-vormig chalet inclusief berging (buitenmaten), met terrasoverkapping
- Kavel van 516m² erfpachtgrond. De erfpacht loopt tot 2069 en de canon bedraagt in 2025 € 5.719,00
- 3 slaapkamers, elk voorzien van een kledingkast
- Open keuken met inbouwapparatuur, waaronder een combi-oven, inductiekookplaat, koel-vriescombinatie en vaatwasser
- Badkamer met witgoedaansluiting, wastafelmeubel en douchecabine
- Separaat toilet in de hal
- Lichte woonkamer met extra hoog uitgevoerd plafond, veel raampartijen, airconditioning (koud & warm), en een grote schuifpui naar het terras
- Het terras ligt beschut en heerlijk gelegen op het zuid-westen; er ligt een tweede terras achterin de tuin
- 2 privéparkeerplaatsen bij het chalet.
- Onderhoudsvriendelijke chalet, kunststof kozijnen met HR++ glas en deels triple glas
- Vloerverwarming in de hal, badkamer en woonkamer. De woonkamer is tevens te verwarmen met de airconditioning; slaapkamers worden verwarmd met elektrische kachels aan de wand
- Er liggen 12 zonnepanelen op het dak
- Berging (8m2) voor het opbergen van fietsen andere praktische (privé) spullen
- Park- en servicekosten bedragen € 1.023,00 per jaar (inclusief onderhoud van heggen, grasmaaien, onderhoud van de wegen, enz.)
Extra's:
-De BTW over de Canon is in zijn geheel (50 jaar) betaald bij aankoop van de duinvilla
-De inboedel van de duinvilla kan eventueel worden overgenomen
- Permanente bewoning is niet toegestaan
- Commerciële verhuur is toegestaan via het park en de organisatie Beach Rentals
- Op het park zijn huisdieren niet toegestaan
- Het chalet heeft energielabel A
De vraagprijs bedraagt 365.000 euro k.k. Bij aankoop bedraagt de overdrachtsbelasting 10,4%.
Voor meer informatie of een bezichtiging kunt u contact opnemen met ons kantoor.




Vestiging Schouwen-Duiveland:
Melkmarkt 9
4301 HB Zierikzee
Vestiging Goeree-Overflakkee:
Suisendijk 14-15
3255 LS Oude-Tonge
0187 - 641 220
Melkmarkt 9
4301 HB Zierikzee
